Projects Portfolio
A curated selection of projects exploring light, proportion, and the balance between nature and structure.
koregoan park road, PUNE — 2025
Cafe extension
A linear space with a temporary roof was designed to accommodate four tables, while also being transformed into a welcoming landscape. A seating element wraps around the existing tree, creating a gesture of gathering and comfort. Natural materials such as yellow Kota stone and Jaisalmer were detailed to push their limits, taking on circular forms that soften the linearity of the space. The result is a simple yet inviting environment where functionality meets crafted detail and nature becomes an integral part of the design.
Cafe design
Type






Circular system
On the seventh floor, a windswept terrace becomes an all-day retreat. A translucent roof, seating, and planters create shaded comfort, while a screen defines a semi-enclosed nook. At the northeast corner, a laminar water cascade—crafted with polished spouts, precise trays, and controlled pressure—adds sound and shimmer by day, glowing white against a dark frame at night. The terrace balances openness with intimacy, crafted detail with industrial rigor, and natural calm with urban resilience.
LAW COLLGE ROAD, PUNE — 2020
Type
Terrace design





FC road, PUNE — 2021
Dual office
The existing 500 sq ft space was envisioned to serve a dual purpose, functioning as a tutorial area after office hours. This requirement shaped the furniture design language, with pre-veneered wooden tables detailed for quick on-site assembly to meet tight timelines. Glass partitions were introduced to ensure the common workspace remained naturally lit, creating an environment that is both efficient and adaptable.
Type
Office design















MAGARPATTA road, PUNE — 2023
Garden House
Set within a gated township, the corner row house opens to gardens on three sides, creating rare openness. Front and backyard levels align with the living room for seamless indoor–outdoor flow. Traditional wada fenestration blends heritage with modernity, paired with neutral grey flooring. At its heart, the mandir integrates with the staircase as a sculptural anchor. Bay windows, fountains, marble louvers, curved shoe rack and crafted details enrich interiors, while the dining bay window channels natural light into everyday life.
Type
Residential design
Grainline Harmony
The flat emerges as a warm, inviting space where solid wood and glass create harmony. Instead of walls, materials themselves connect the rooms—wood panels, glass partitions, and smart storage bind spaces together, letting light and warmth flow freely. At the entrance, a kitchen window becomes a subtle yet defining gesture: it links the lobby and kitchen, transforming a once closed corner into a welcoming transition. This detail integrates the kitchen into the home’s rhythm, encouraging openness and interaction. Project done under tenure of BSA
AHMEDABAD— 2023
Type
Residential interiors

















Rasta peth, PUNE — 2021
Oasis
In a compact 200 sq ft space with low height, tight budget, and time constraints, the challenge was to craft a spa-like retreat. The design effort extended beyond spatial planning to coordinating vendors through a barter system, turning the process into a collective endeavor. Beyond the brief, the space evolved into a social hub, with a reading room and lounge added to enrich its character and create a welcoming environment.
Type
Spa design
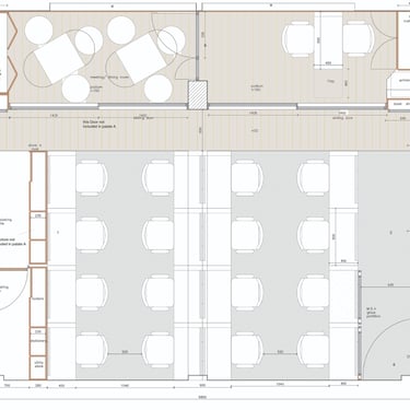
Community centre
The proposed Community Centre in Kodidoddi is an inclusive hub for gathering, learning, and celebration. Its checkerboard layout blends open, semi-open, and enclosed spaces, fostering fluid inside–outside connections. Human-scale volumes, verandah-like elements, and flexible areas create comfort and adaptability. Built with local stone, brick, and Mangalore tiles, it is sustainable and rooted in village identity. Courtyards, thick walls, and orientation ensure natural light, ventilation, and climate responsiveness, while rainwater harvesting and bioswales enhance ecology. The Centre embodies unity, resilience, and shared identity.
Kodiddodi— 2024
Type
Public building













Maastritch, Netherlands — 2016
Stone city
City Stone The exhibition traced stone’s role in shaping Maastricht’s identity—from quarry to foundation, structure, infill, cladding, and ornament. It highlighted stone’s economic and cultural impact, its evolving use after technological shifts, and its deep ties with people, craft, and tools. Furniture, models, scrolls, and stone pieces were crafted in-house to present this journey, weaving a narrative of heritage, innovation, and resilience through the city’s built forms.
Type
Exhibition design
